TH型圓環鏈斗式提升機是一種圓環鏈斗式提升機采用混合式或重力卸料,挖取式裝料。牽引件用優質合金鋼高度圓環鏈。中部機殼分單、雙通道兩種形式為機內重錘箱恒力自動張緊。鏈輪采用可換輪緣組合式結構。使用壽命長,輪緣更換工作簡便。下部采用重力自動張緊裝置,能保持恒定的張緊力,避免打滑或脫鏈,同時料斗遇到偶然因素引起的卡殼現象時有一定的容讓性,能夠有效地保護下部軸等部件。
? TH系列圓環鏈斗式提升機備有二種料斗:ZH型(中深斗)一般適用于輸送濕的、易結塊、較難拋出的物料,如濕砂、型砂、化肥、堿肥、堿粉等。SH型(深斗)一般適用于輸送干燥的、松散易于拋出的物料,如水泥、碎石、煤塊等

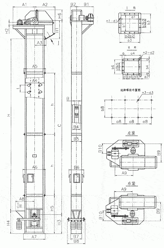
| 斗式提升機型號 | 整機結構尺寸 | 地腳孔尺寸 | 上部機殼尺寸 | 下部機殼尺寸 | 中部機殼尺寸 | |||||||||||||
| L | H | H3 | S | ag | bg | n3×d3 | H1 | A2 | B2 | H5 | A7 | A8 | B5 | A4 | A5 | B3 | B4 | |
| TH160 TH200 TH250 TH315 TH400 TH500 TH630 TH800 TH1000 TH1250 |
C+1300 C+1350 C+1500 C+1600 C+1760 C+2300 C+2300 C+2390 C+2650 C+2780 |
C-750 C-750 C-850 C-900 C-950 C-940 C-950 C-880 C-950 C-1000 |
750 750 850 900 950 1060 1250 1320 1400 1500 |
200 200 200 250 250 250 300 300 300 320 |
400 400 340 350 400 360 400 450 410 450 |
320 425 496 571 658 788 918 1100 1360 1570 |
6×Φ18 6×Φ18 8×Φ22 8×Φ22 8×Φ22 10×Φ26 10×Φ26 10×Φ26 12×Φ32 12×Φ32 |
900 900 1000 1120 1250 1400 1600 1800 2000 2400 |
1000 1000 1190 1267 1394 1545 1706 1866 2065 2221 |
295 340 376 443 518 579 644 709 825 910 |
1500 1500 1800 1800 1900 2000 2200 2200 2350 2500 |
1131 1131 1346 1416 1566 1808 2028 2208 2460 2660 |
1330 1374 1649 1825 2080 2380 2720 3110 3560 4040 |
497 506 598 695 793 910 1066 1216 1460 1710 |
1000 1000 1180 1250 1400 1600 1800 2000 2200 2400 |
1105 1105 1362 1396 1546 1768 1968 2148 2370 2570 |
280 255 400 475 560 670 800 1000 1200 1450 |
385 460 532 621 706 838 968 1148 1370 1520 |
TH型斗式提升機技術參數表:
| 提升機型號規格 | TH160 | ? TH200 | TH250 | ||||
| 料斗形式 | ZH | SH | ZH | SH | ZH | SH | |
| 輸送量(100%)米3/時 | 15.77 | 24.97 | 17.87 | 28.6 | 31.43 | 48.19 | |
| 料斗 | 料斗容積(盛水)升 | 1.2 | 1.9 | 1.5 | 2.4 | 3.0 | 4.6 |
| 料斗間距(毫米) | 500 | ||||||
| 鏈條 | 圓鋼直徑*節距(毫米) | ?????????????????????????? 14*50?????????????????????????? | |||||
| 單條破斷載荷(千牛頓) | ????????????????????????????? ≥190????????????????????????????? | ||||||
| 傳動鏈輪轉速(轉/分) | 69.71 | ???? 63.22 | 44.11 | ||||
| 輸送物料**大塊度(毫米) | 20 | ?????? 25 | 30 | ||||
注釋:上表為TH型160、200、250型斗式提升機技術參數表,表中料斗容積為盛水容積,輸送量按此斗容計算時為100%填充。
| 提升機型號規格 | TH315 | ? TH400?????? TH500 | TH630 | |||||
| 料斗形式 | ZH | SH | ZH | ?? SH????????? ZH | SH | ZH | SH | |
| 輸送量(100%)米3/時 | 35 | 59 | 58 | ?? 94????????? 73 | 118 | 114 | 185 | |
| 料斗 | 料斗容積(盛水)升 | 3.75 | 6.0 | 5.9 | ?? 9.5???????? 9.3 | 15.0 | 14.6 | 23.6 |
| 料斗間距(毫米) | ?????? 512?????????????????????????????????????? 688 | |||||||
| 鏈條 | 圓鋼直徑*節距(毫米) | ????? θ18*64??????????????????????????????????? θ22*86 | ||||||
| 單條破斷載荷(千牛頓) | ?????? ≥320???????????????????????????????????? ≥480???? | |||||||
| 單位長度牽引件重量(公斤/米) | 25.64 | 26.58 | 31.0 | ??? 31.9????????? 41.5 | 44.2 | 49.0 | 52.3 | |
| 傳動鏈輪轉速(轉/分) | 42.5 | ?? 37.6?????????? 35.8 | 31.8 | |||||
| 輸送物料**大塊度(毫米) | 35 | ?? 40????????????? 50 | 660 | |||||
注釋:
1.表中斗容為計算斗容,輸送量按填充系數0.6計算得出。
2.TH型斗提機料斗用途:
? Zh--中深斗:輸送濕粘性物料,如糖、濕細沙等。
? Sh--深斗:輸送重的粉狀至小塊狀物料,如水泥、砂、煤等。
3.HL型斗提機料斗用途:
? Q--淺園底料斗:輸送潮濕、易結塊、難拋出的物料,如濕沙、濕煤等。
? S--深園底料斗:輸送干燥的、松散的、易拋出的物料,如水泥、煤塊、碎石等。
4.張緊力計算:
? G=40+0.232·H
? 式中:Q--輸送量(t/h)?? H--提升高度(mm)?? G--張緊力(kg)
?
| 型號規格 | YY型驅動裝置 | YY型驅動裝置 | ||||||
| C1 | C2 | C3 | C4 | C1 | C2 | C3 | C4 | |
| TH315 | Y5Y125 | Y7Y140 | Y11Y160 | Y15Y180 | Y5J4 | Y7J4 | Y11J5 | Y15J5 |
| TH400 | Y11Y160 | Y15Y180 | Y18Y180 | Y22Y200 | Y11J5 | Y15J6 | Y18J6 | Y55J6 |
| TH500 | Y15Y180 | Y18Y200 | Y22Y200 | Y30Y224 | Y15J6 | Y18J6 | Y22J6 | ? |
| TH630 | Y18Y200 | Y22Y224 | Y30Y224 | Y37Y250 | Y18J6 | Y22J6 | ? | ? |
說明:Y5Y125表示Y型電機功率為5.5KW,ZLY125型減速機。
???????? Y11J5表示Y型電機功率11KW,JZQ500型減速機。
TH型斗式提升機主要尺寸:
| 型號規格 | 整機結構尺寸 | 地腳孔尺寸 | 上部機殼尺寸 | |||||||||
| L | H | HO | H4 | S | t | a8 | b8 | n3×d3 | H3 | A2 | B2 | |
| TH315 | C+1643 | C-873 | 850 | 900 | 250 | 512 | 445 | 561 | 8×Φ22 | 1585 | 1267 | 443 |
| TH400 | C+1763 | C-1249 | 950 | 950 | 250 | 512 | 495 | 646 | 8×Φ22 | 1690 | 1394 | 498 |
| TH500 | C+2024 | C-1522 | 1100 | 1060 | 250 | 688 | 569 | 778 | 8×Φ26 | 1690 | 1545 | 579 |
?










新鄉市宏達振動設備有限責任公司
聯系人:張經理
手 機:13673730330
傳 真:0373-2615068
地址:新鄉市環宇大橋300米路南
郵 箱:723726277@qq.com